금정역 skv1 3차 지식산업센터 각 층별 도면 및 호실별 면적표이다.
지하 2층
창고

호실 전용면적(평) 계약면적(평)
B201 14.4 29.91
B202 12.91 26.81
B203 14.34 29.8
B204 14.34 29.8
B205 12.91 26.81
B206 13.89 28.85
B207 21.52 44.71
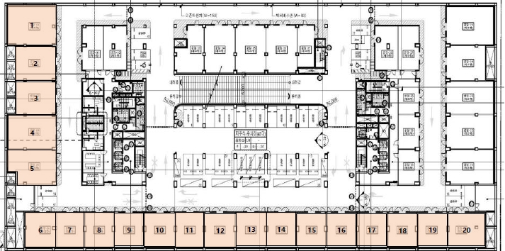
지하 1층
제조형공장 B101~B120호

호실 전용면적(평) 계약면적(평)
B101 40.17 83.45
B102 27.93 58.02
B103 28.53 59.27
B104 33.78 70.17
B105 32.94 68.43
B106 23.53 48.88
B107 20.69 42.99
B108 21.02 43.68
B109 22.64 47.03
B110 22.64 47.03
B111 21.02 43.68
B112 22.64 47.03
B113 22.64 47.03
B114 22.64 47.03
B115 21.02 43.68
B116 22.64 47.03
B117 22.64 47.03
B118 21.02 43.68
B119 22.64 47.03
B120 27.86 57.87
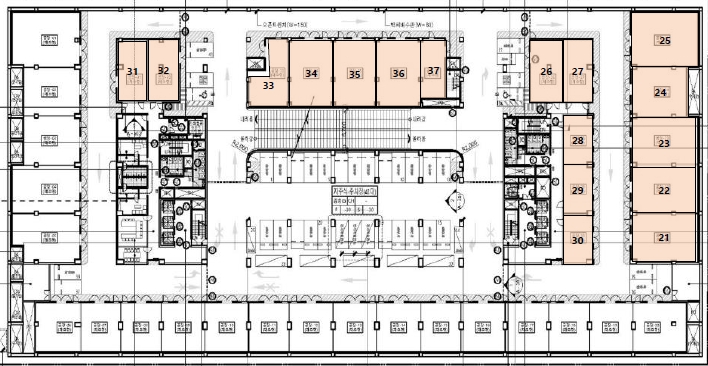
제조형공장 B121~B137호

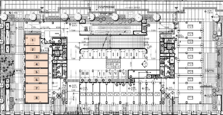
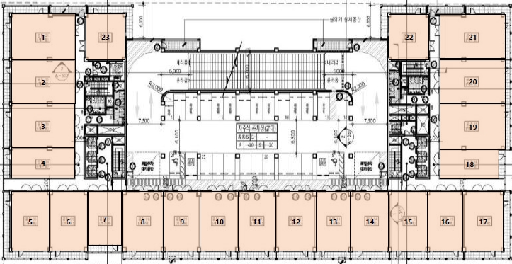
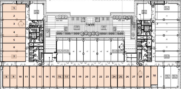
지상 1층
근린생활시설

지상1층
제조형공장

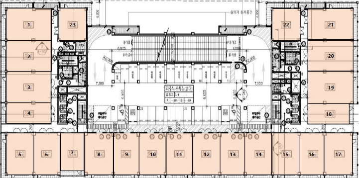
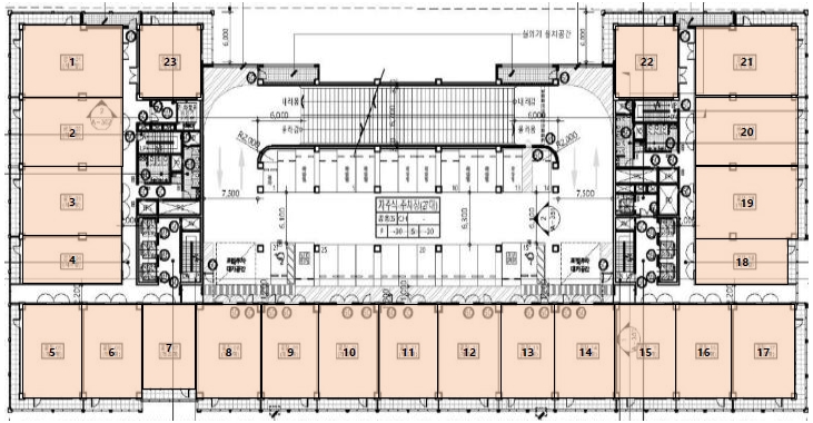
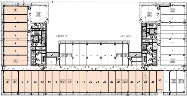
지상2층
제조형공장

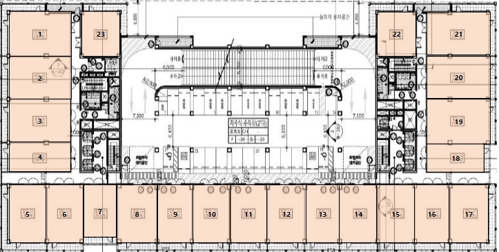
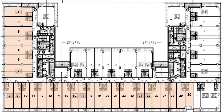
지상3층
제조형공장

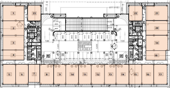
지상 4층
제조형공장

지상5층
제조형공장

지상5층
제조형공장

지상7층
제조형공장

지상8층
여기다
업무형공장

지상8층
업무형공장 831~852

지상9층
업무형공장 901~930

지상9층
업무형공장 931~951

지상10층
라이브오피스 1001~1030호

지상10층
라이브오피스 1031~1052호

[참고글] - 금정역 3차 SKV1 지식산업센터 분양 설계 입지분석
금정역 3차 SKV1 지식산업센터 분양 설계 입지분석
금정역의 가장 인기 자리인 SK 브랜드 타운의 마지막 지식산업센터인 금정역 3차 SKV1이 분양을 시작한다. 트리플 역세권에 직주근접이 유리하고 안양 첨단산업의 중심지에 마지막 공급 상품으로
great20.tistory.com
'지식산업센터' 카테고리의 다른 글
| 더에이치타워919 층별도면 층고 하중 마감재 (0) | 2022.06.13 |
|---|---|
| 더에이치타워919 지식산업센터 장단점 개발호재 분석 (0) | 2022.06.12 |
| 금정역 3차 SKV1 지식산업센터 분양 설계 입지분석 (0) | 2022.05.11 |
| 영등포 문래동 에이스 NS타워 지식산업센터 전매 (0) | 2022.03.21 |
| 세영 이노세븐 지식산업센터 분양가 입지장점 (0) | 2022.03.15 |