장위뉴타운은 전체 15개 구역 중 1,2,5,7구역이 입주를 마쳤으며 장위4구역과 6,10구역은 관리처분계획 인가를 받은 후 착공을 계획중이다.
장위4구역은 철거 작업이 완료되었으며 GS건설이 2024년까지 지하 3층에서 지상 최고 32층의 31개동을 짓게된다.
2840가구 규모의 장위4구역 자이 아파트가 탄생하게 된다.
장위 4구역, 6구역, 10구역은 입주권 프리미엄이 7억에서 8억원에 달한다고 전해진다.
다음은 장위4구역 면적별 자이 평면도이며 변경될 수 있다.
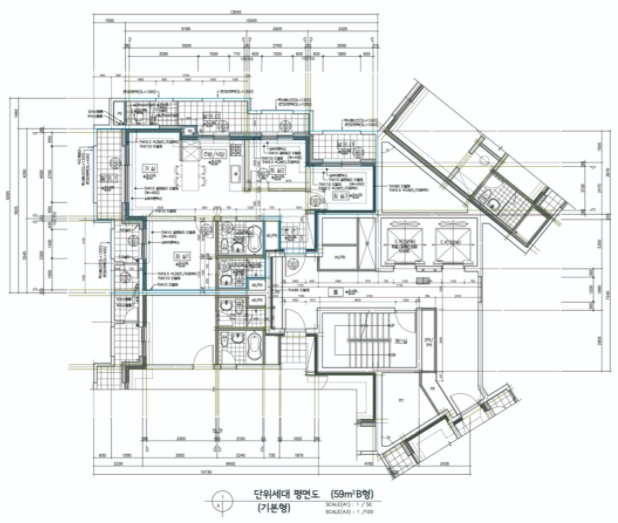
1. 장위4구역 자이 59제곱미터 B형 기본형

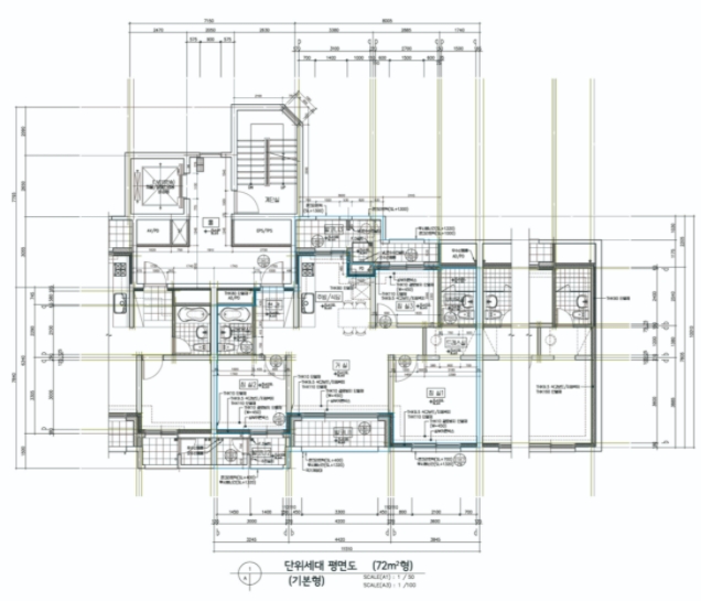
2. 장위4구역 자이 72제곱미터 기본형

3. 장위4구역 자이 84제곱미터 A형 기본형

인기높은 평형인 84제곱미터는 무난한 설계가 돋보인다.
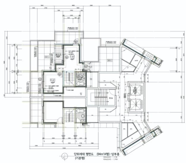
4. 장위4구역 자이 94제곱미터 A형 기본형 상부층

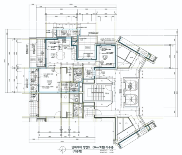
5. 장위4구역 자이 94제곱미터 A형 하부층

6. 장위4구역 자이 97제곱미터 기본형

97제곱미터형은 넓은 평형의 시원한 설계가 이루어진다.
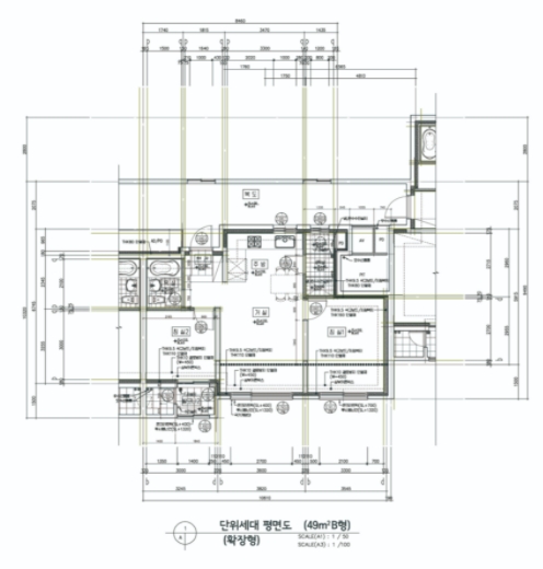
7. 장위4구역 자이 49제곱미터 B형 확장형

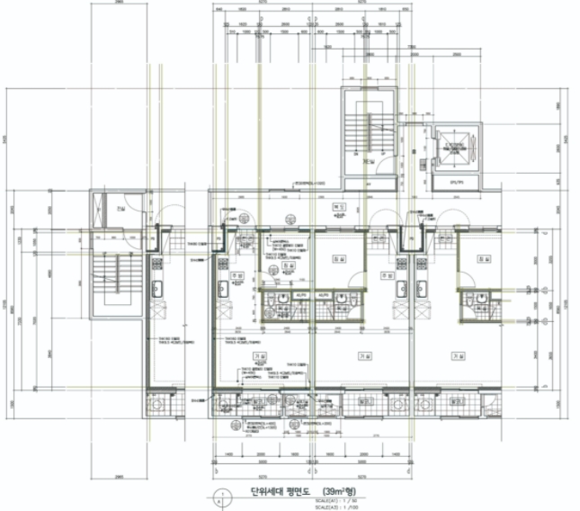
8. 장위4구역 자이 39제곱미터형

장위4구역 주택재개발정비사업조합은 재개발(주택정비형)이며 서울시 성북구 장위동 62-1번지 일대에 정비구역으로 위치한다.
장위 4구역 정보 더보기:
https://great20.tistory.com/281
장위4구역 자이 분양가 청약 진행상황
성북구 '장위4구역 자이'는 올해 말 관리처분인가가 예정돼 있어 일반분양은 내년 초에 이뤄질 전망이다. 장위4구역 자이는 총 가구수가 2840가구로 장위뉴타운 중 규모가 가장 커 수요자들의 큰
great20.tistory.com
장위4구역 자이의 땅이 특성은 정비구역 면적은 153,501제곱미터이며 조합원수 906명이고 토지등 소유자 수는 1,172명이다.
세입자 수 562명이며 용도지역은 제2종일반주거지역으로 용도지구는 일반미관지구이다.
'아파트 주택' 카테고리의 다른 글
| 2022 서울리츠행복주택 청약 임대료 (0) | 2022.01.02 |
|---|---|
| 2022년 접수 행복주택 청약일정 임대료 (0) | 2021.12.29 |
| 강릉역 경남아너스빌 더센트로 분양공고 (0) | 2021.12.27 |
| 시흥 신천역 한라비발디 분양일정 청약 분양가격 (0) | 2021.12.21 |
| 평택 고덕국제신도시 A46블록 디에트르 사전청약 (0) | 2021.12.20 |