부산 BIFC 2차 지식산업센터의 층별 도면 상세 계획이다.
지상 1층에서 3층까지는 근린생활시설이다.
지상 5층에서 26층은 지식산업센터이며 지상 28층에서 45층은 업무시설로 이전 공공기관 업무공간으로 활용될 에정이다.

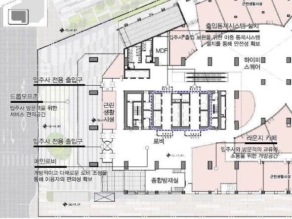
1층 설계도면
업무공간 전용 로비 조성계획이다.
호텔형 메인 로비 라운지 계획으로 입주 기업의 비즈니스 품격이 올라가는 설계이다.
개방적인 메인로비 설계로 층고 8미터, 전장고 5미터 계획을 통해 개방적인 내부공간을 조성하고 일조 및 채광을 확보한다.

업무지원 시설
부산 BIFC 2차 지식산업센터 업무지원 시설은 입주사의 쾌적하고 편리한 업무환경과 휴게 공간을 제공한다.
지상 22층 업무지원공간구성으로 세미나실, 라운지, 체력단련실, 수면실, 그로잉 가든을 조성한다.
그로잉가든은 입주사 전용 휴가공간이자 중앙광장 조망르 통한 리프레시 공간으로 활용할 수 있드며 체력단련실과 연계를 통한 쾌적성 확보 및 이용자 건장 증진을 도모할 수 있다.

수면실은 직장인 니즈를 반영한 휴게공간으로 휴식을 통한 업무효율을 증진시킬 수 있으며 여성전용휴게공간을 포함한다. 세미나실은 국내외 기업들과의 화상회의를 위한 전용네크워크 업무지원공간으로 미디어월과 화상회의에 특화된 AV시스템을 갖춘다.
라운지는 핫데스크와 5G 네트워크 설치를 통한 디지털 미팅라운지로 입주사 구성원간 활발한 교유와 지식공유를 위한 커뮤니티 공간이다.
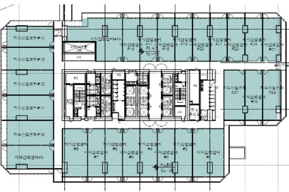
지식산업센터 23~26층 평면도
부산 BIFC 2차 지식산업센터는 개방감을 고려한 층고 계획으로 다양한 규모의 사무실 공간 구성이 가능한 평면으로 구성했다.
지상 23층에서 26층 평면도는 아래와 같다.
개방감을 고려한 층고계획으로 4.2미터 층고에 천장고는 2.7미터로 개방감 및 자연채공을 고려했으며 남측면 집광채광으로 루버를 설치했다.

기업의 규모에 따라 단계별 면적 확장이 가능한 모듈형 평면 계획이다.
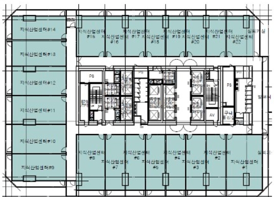
지상5층 평면도
지상5층은 15~20평형이 17호실, 20평~25평형은 8칸, 전용 25평형 초과는 2칸으로 구성되어있다.

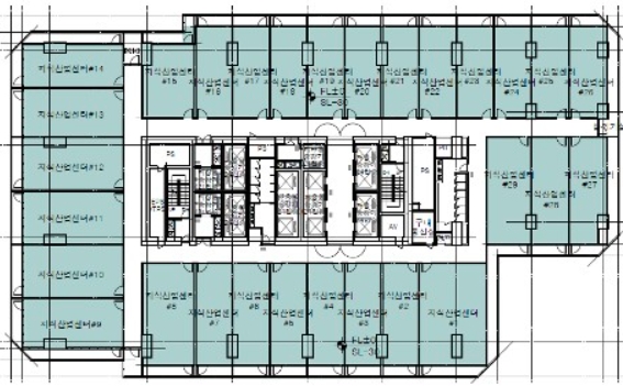
지상 6층~21층 설계도
전용 15평에서 20평형은 20칸, 20평형에서 25평형은 8칸, 25평형 초과는 한칸으로 구성되어있다.

지상 23층~지상26층 도면
전용15평 미만은 6호실, 15평에서 20평형은 8개호실, 전용 20평형에서 25평형은 7개호실, 25평형 초과는 1개호실로 구성되어있다.

부산 BIFC 2차 지식산업센터의 도면은 인허가 과정에서 변경될 수 있으며 위는 변경과정에서 참고만 할수 있는 자료이다.
[참고]
부산 남구 문현동의 문현금융혁신도시내 최초 지식산업센터로 관심을 크게 불러일으키고 있다.
'지식산업센터' 카테고리의 다른 글
| 세영 이노세븐 지식산업센터 분양가 입지장점 (0) | 2022.03.15 |
|---|---|
| 지축역 에이스하이엔드타워 지식산업센터 분양정보 (0) | 2022.02.11 |
| 부산 BIFC 2차 지식산업센터 입지 개발호재 분석 (0) | 2022.02.03 |
| 배곧 프라임센터 지식산업센터 층별도면 (0) | 2022.01.28 |
| 배곧프라임센터 지식산업센터 분양가 개발호재 (0) | 2022.01.25 |