반응형
방배5구역 주택재건축 정비사업으로 디에이치방배가 분양을 향해 사업을 진행하고있다.
방배5구역 재건축 개요
- 정비구역 명칭 : 방배5구역 주택재건축 정비사업
- 사업구분 : 재건축
- 정비구역 위치 : 서울특별시 서초구 방배2동 946-8번지 일대
- 정비구역 면적(㎡) : 176,496.1
- 조합원 수 : 1,142명
- 토지등 소유자 수 : 1,168명
- 층수 : 지상 33/지하4
방배5구역 디에이치방배 아파트 공급 계획
- 세대수 : 2,799
- 60제곱미터 이하 : 635
- 60제곱미터 초과 85제곱미터 이하 : 1,174
- 85제곱미터 초과 :990
공동이용 시설 계획
- 경로당 589.31㎡
- 작은도서관 376.24㎡
- 어린이집 760.96㎡
- 기타 주민공동시설 (피트니스센터 외) 14,801.59㎡
- 관리사무소 576.57㎡
- 어린이놀이터 2,730.44㎡
- 주민운동시설 983.23㎡
위치도
방배5구역 재건축 방배디에이치는 총 3천80가구중 임대주택 292가구를 포함한 일반분양 세대가 1천88가구가 분양될 전망이다.
이는 전체 50%가량 물량이므로 일반 청약 대기자들의 관심이 높다.

조감도
디에이치방배는 지하철 4·7호선 환승역인 이수역과 7호선 내방역 사이에 위치해 있다.
여기에 2호선인 방배역과 사당역을 걸어서 이용할 수 있는 트리플역세권으로 우수한 입지를 자랑한다.
장재터널, 방배서리풀터널이 개통되어 강남권 접근성이 빨라져 직장 접근성과 교육의 진입이 좋아졌다.

교육환경도 우수하다. 방배초등학교, 이수중학교, 서문여중,고교를 걸어서 등하교 할 수 있다.
세화고등학교, 상문고등학교, 서울고등학교등 명문학군을 자랑한다.
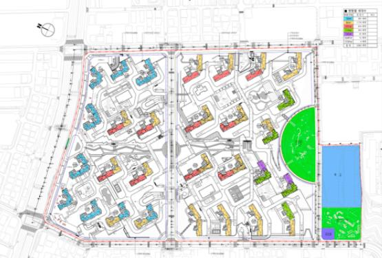
배치도
방배5구역 재건축 디에이치방배는 지하 4층에서 지상 33층 총 3천80가구 아파트로 건축된다.
서초구 방배동 재건축 단지 중 규모가 가장 큰 아파트로 방배동의 랜드마크 아파트로 건축될 예정이다.
이 중 1686가구를 일반 분양하며 다음은 방배 디에이치 아파트의 배치도이다.

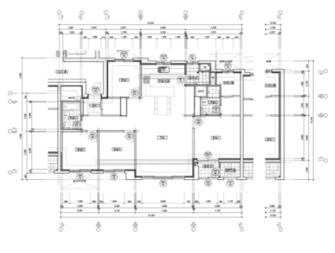
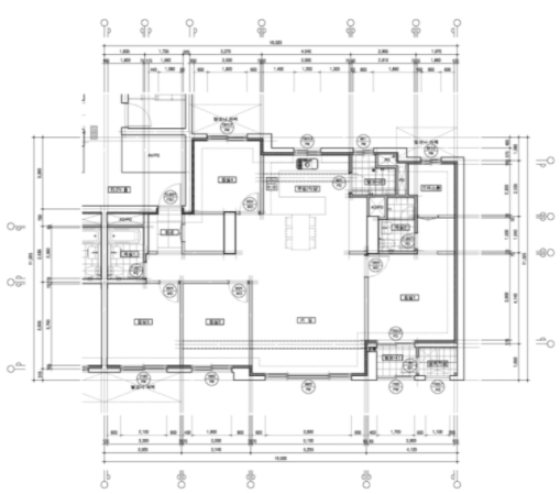
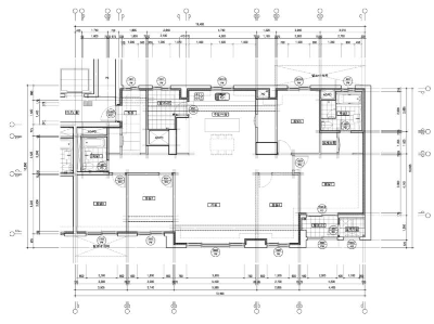
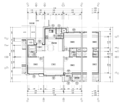
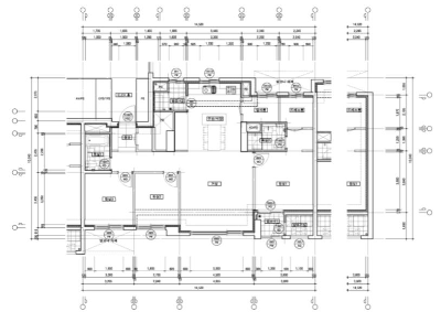
평면도
전용101제곱미터형

전용114제곱미터형

전용143제곱미터형

전용164제곱미터형

전용175제곱미터형

전용59A형

전용84형

반응형
'아파트 주택' 카테고리의 다른 글
| 한화포레나 미아 분양일정 청약 모델하우스 (0) | 2022.01.24 |
|---|---|
| 아크로서울포레스트 진동 원인 시공사 (0) | 2022.01.24 |
| 송도 힐스테이트 레이크 4차 분양 청약 (0) | 2022.01.21 |
| 서광교 파크뷰 분양 모델하우스 (0) | 2022.01.20 |
| 파주 운정신도시 A33 우미린 사전청약 (0) | 2022.01.19 |