반응형
경기도 고양시 지축동 일원 고양지축 B1블록 아파트가 공공분양주택으로 분양된다.
고양지축 B1블록은 59제곱미터형 386가구, 84제곱미터형 226가구 등 총 612호를 분양한다.
이중 85프로는 특별공급 물량이며 나머지 15프로가 일반공급으로 분양된다.
분양가상한제 적용주택으로 재당첨제한은 10년 적용된다. 또한 주택소유 및 재당첨제한 등 부적격당첨자는 해당기관의 추천여부, 신청접수 및 동호배정 여부와 무관하게 계약체결이 불가하며, 부적격당첨자로 관리 되어 당첨일로부터 최대 1년간 다른 분양주택의 입주자로 선정 불가하다.
시행사 : 한국토지주택공사
시공사 : ㈜대우조선해양건설
공급위치 : 경기도 고양시 지축동 공공주택지구내 B1블록
입주예정시기 : 2024년 4월 예정
고양지축 B1BL 공공분양 분양평형

고양지축지구는 인근에 북한산이 위치해 자연환경이 좋고 국도1호선과 서울외곽고속도로를 통해 일산, 양주, 파주 등으로 이동이 편리한 지리적 특성으로 최근 더욱 주목받고 있는 지역이다.
고양지축 B1블록 아파트 단지 남서측에 지하철3호선 지축역이 위치해 있어 출퇴근이 편리하고 도보 5분 거리에 근린공원과 초등학교, 중학교가 위치해 학교환경과 생활도 편리하다.
청약자격
- 무주택 세대구성원으로 세대주 및 구성원 모두 주택이나 분양권을 소유하지 않아야한다.
- 수도권 거주자로 모집공고일 현재 수도권에 거주하고 있어야한다.
- 청약통장 가입후 6개월이 경과하고 6회아상 납입실적이 있어야한다.
분양일정
입주자모집공고(예정) 2021. 09. 27(월)
청약접수(예정) 2021. 10. 06(수)

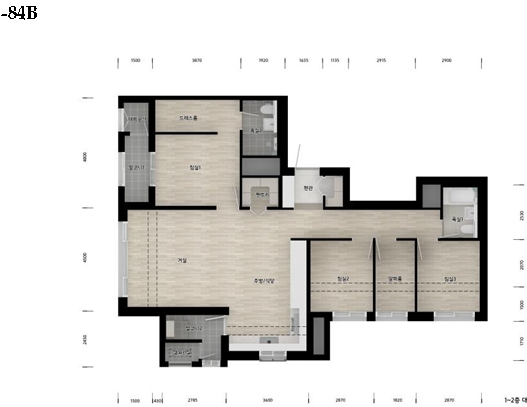
평면도
59A

59B

84A

84B

분양가
고양지축 B1블록의 분양가는 84제곱미터형기준 6억 중반 전후로 예상된다.
반응형
'아파트 주택' 카테고리의 다른 글
| 시지 센트레빌 분양일정 시지경북타운 특징 (0) | 2021.09.25 |
|---|---|
| 대전 천동 리더스시티 분양가 모델하우스 (0) | 2021.09.24 |
| 용인 경남아너스빌 디센트 청약조건 전매 (0) | 2021.09.14 |
| 둔촌주공 일반분양 분양가 상승시 대출영향 (0) | 2021.09.13 |
| 안산 한신더휴 아파트 분양 모델하우스 (0) | 2021.09.10 |